SORA COMFORT

SORA COMFORT

自然素材×
モダンで都会的な空間

自由設計と優美なシルエットデザイン、
そして自然素材の温もりを融合して叶える家
“SORA COMFORT”。
耐震性・防音性にも優れ、
上質で快適なワンランク上の空間を演出します。

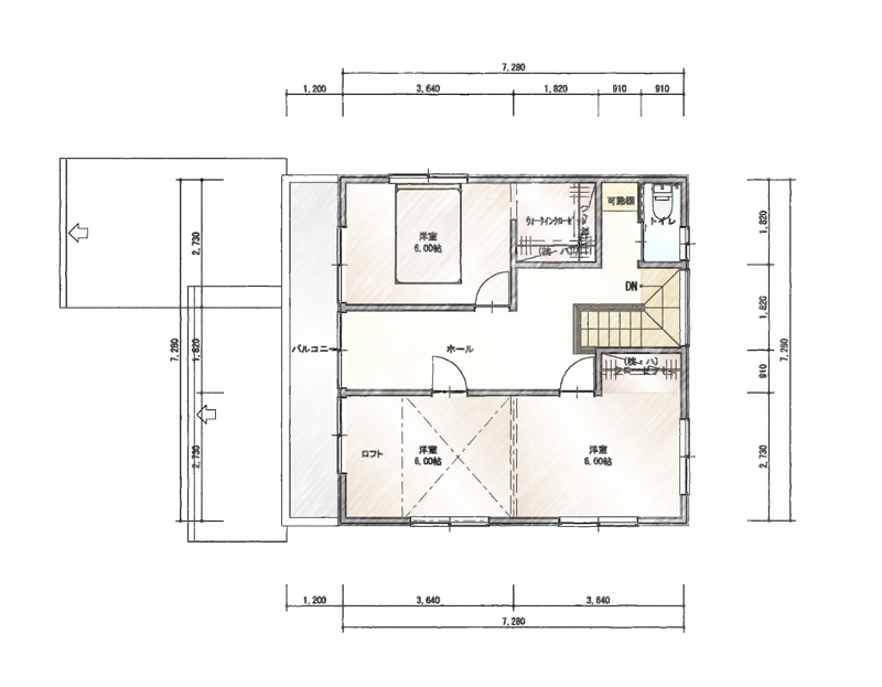
PLAN

間取りプラン

  • 1F
  • 2F

住宅性能

ハイグレード(断熱等級5 耐震等級3)
仕様表をご紹介します。

    • 土台一桧
    • 無垢材
    • 120角
    • 柱一桧
    • 無垢材
    • 120角
    • 壁 断熱材(グラスウール)
    • MAG
    • グラスウール105mm(高性能品)
    • 天井 断熱材(グラスウール)
    • MAG
    • グラスウール155mm(高性能品)
    • 床 断熱材
    • カネカ
    • カネライトフォーム
      スーパーEX 55mm
    • 基礎断熱材
    • カネカ
    • カネライトフォーム
      スーパーE-Ⅱ50mm(3種ーbA)
    • 屋根材
    • 三州陶器瓦(防災防風瓦)
      • 三州陶器瓦(防災防風瓦)
      • ガルバリウム鋼板
    • 屋根 雪止め(瓦一体型、金具止め)
    • オプション
    • 外壁材
    • 旭化成
    • パワーボード37mmフラットパネル
      グランロック塗装
    • サッシ・ガラス
    • YKK AP
    • エピソードNEO(ペアガラス・アルミ樹脂複合窓)
      Low-eガラス アルゴンガス入り、アルミスペーサー
    • シャッター(雨戸)
    • YKK AP
    • オプション
    • 玄関ドア
    • YKK AP
      • 断熱ドアヴェナートD30
        D2仕様 ポケットキー
      • れん樹 引き戸
    • 玄関収納
    • ノダ
    • 幅1600
    • 内部建具
    • ノダ
    • カナエルC
    • フロア
      • 1階 無垢フロア15mm
      • 2階 ノダカナエルC12mm
    • 和室(1室)
    • 大壁 天然イ草標準品
    • 内装仕上げ
    • トキワ・リリカラ・サンゲツ
    • クロス
    • トイレ
    • TOTO
    • 1階 ウォシュレット一体型(ZJ1)
      2階オプション
    • 洗面化粧台
    • ハウステック
    • ココッシュW750(3面鏡)
    • ユニットバス
    • ハウステック
    • ルクレ1616
    • キッチン
    • ハウステック
    • マルーレI型2550mm(IH)
    • カップボード
    • ハウステック
    • W1650(家電収納)
    • 給湯器(省エネ高効率ガス)
    • ノーリツ
    • エコジョーズ24号(フルオートタイプ)
    • 24時間 換気システム
    • YKK AP更科
    • 第3種換気システム(サッシ一体型)
    • テレビターミナル
    • 1カ所
    • 照明(LED)
    • オーデリック
    • 定価35万円(30坪未満)40万円(35坪未満)