TERA COMFORT
余白を愉しむ、ロフトのある大人の住まい
-
外観

断熱性・防火性・遮音性に優れたパワーボードを採用。
毎日住み続ける家だからこそシンプルで飽きのこないデザインに。
-
LDK

リビングは広すぎずちょうどいいコンパクトサイズ。
階段下まで有効活用し木の存在感溢れる心地良い空間へ。
-
和室

LDKの隣には、フラットに繋がる和室。襖を開けると空間を広く使えるのもポイント。
押入の上にはお施主様のご希望で神棚スペースを設け、使用しているものを引き続き活用出来ます♪
-
キッチン前カウンター

キッチン前カウンターを設置し、食事やスタディーペースとして活用します。
隣には収納スペースもあり、物置になりやすいカウンター上もいつもスッキリさせられますね!
-
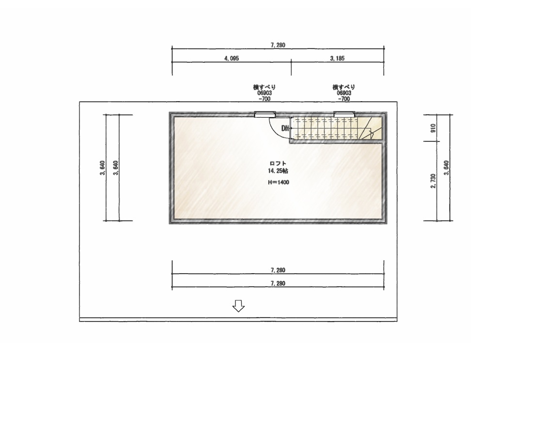
ロフト

階段を上がると小さなドアがありロフトスペースへ繋がります。
空間の有効活用により、まるで秘密基地のような約14帖(天井高1400mm)のお部屋。
収納スペースになったり、趣味部屋になったりとドア付きなので1人の時間を寛ぐことも出来ます♪














